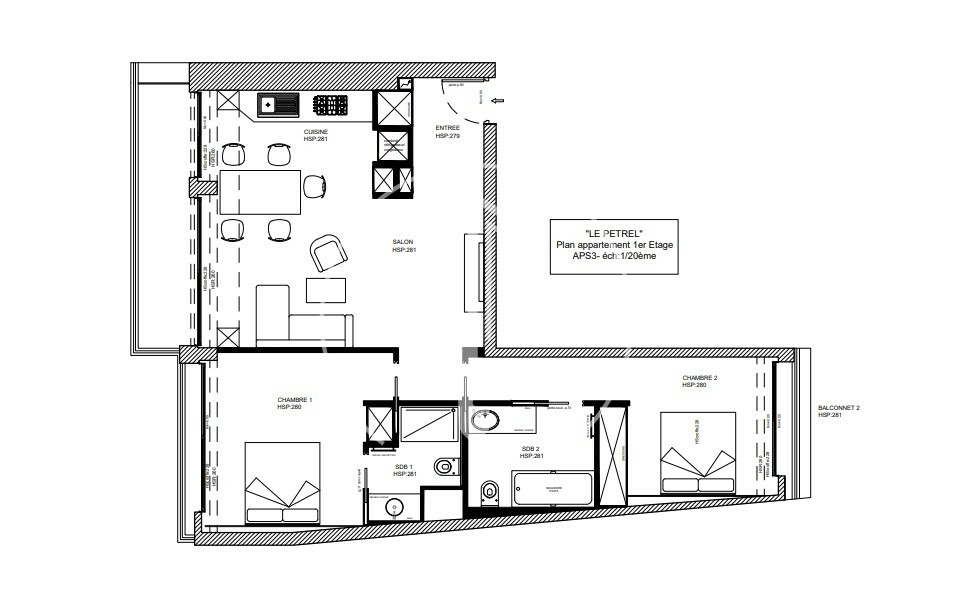
PETREL- Trilocale Ristrutturato

4 500 000 €
Heritage Properties

Heritage Properties

31, avenue Princesse Grace

Rif. : HP-PTR101
Prezzo : 4 500 000 €
Camere : 2
Bagni : 2
Tipo di proprietà : Appartamento
Edicifio : Le Petrel
Quartiere : Port (Monaco)
Superficie abitabile : 95 m²
Superficie totale : 95 m²

Maggiori dettagli

Condamine, il quartiere più dinamico del Principato di Monaco, trilocale in un residence con ascensore.

Situato al primo piano, questo trilocale ristrutturato e ad uso misto è molto luminoso grazie alla sua esposizione.

È composto da: un ingresso, un soggiorno con cucina a vista e terrazza, due camere da letto e due bagni.

Heritage Properties

Heritage Properties

31, avenue Princesse Grace

Contatto

BDGRYZ
Copiare il codice antispam nel campo a destra
* campo obbligatorio

Posizione del prodotto

Port

Scopri gli appartamenti vicino al Port Hercule.

Una zona centrale e dinamica con vista sul porto e sugli yacht più prestigiosi.

Quartieri di Monaco

Mareterra Carré d'Or Condamine Fontvieille Jardin Exotique La Rousse - Saint Roman Larvotto Monaco-Ville Moneghetti Monte-Carlo Port