MONACO - IL TROCADERO

6 100 000 €
CAPI

CAPI

31, avenue Princesse Grace

SCRIVANIA SPAZIOSA DA AFFERRARE

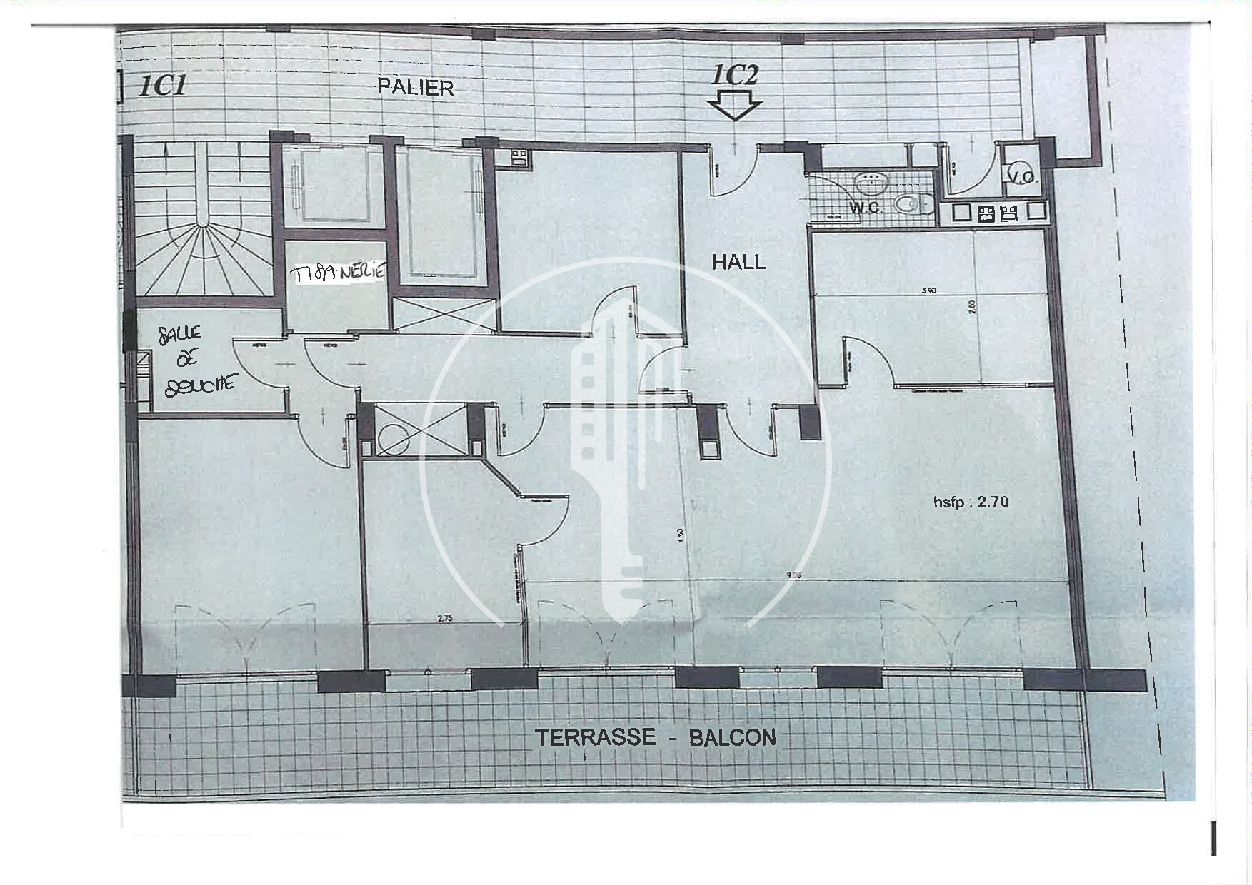
Rif. : 1C2 TROCADERO
Prezzo : 6 100 000 €
Bagni : 1
Tipo di proprietà : Altro prodotto
Edicifio : Trocadero
Quartiere : Monte-Carlo (Monaco)
Superficie abitabile : 130 m²
Superficie totale : 158 m²
Superficie terrazzi : 28 m²
Livello : 1

Maggiori dettagli

Situato tra il Larvotto e la Place du Casino, il Trocadero è un edificio di lusso con servizio di portineria.

Questo ufficio, ristrutturato e luminoso, al primo piano si sviluppa su una superficie di 158m² di cui 28 di loggia ed è così composto:

  • Un atrio d'ingresso
  • Un bagno per gli ospiti
  • Un open space con una sala principale e due uffici separati da pareti divisorie in vetro, oltre a un ufficio direzionale, ciascuno con accesso alla terrazza.
  • Un secondo ufficio che si affaccia sul retro dell'appartamento
  • Una tisaneria
  • Un bagno con doccia
CAPI

CAPI

31, avenue Princesse Grace

Contatto

JKLORW
Copiare il codice antispam nel campo a destra
* campo obbligatorio

Posizione del prodotto

Monte-Carlo

Scopri gli appartamenti nel cuore di Monte Carlo.

Questo quartiere iconico è noto per le residenze di lusso e lo stile di vita esclusivo.

Quartieri di Monaco

Mareterra Carré d'Or Condamine Fontvieille Jardin Exotique La Rousse - Saint Roman Larvotto Monaco-Ville Moneghetti Monte-Carlo Port