ROSA MARIS - Fontvieille - Bilocale Rinovato– Vista " Roseraie "

4 950 000 €
Heritage Properties

Heritage Properties

31, avenue Princesse Grace

Bilocale ai piani alti sul porto di Fontvieille, con logge e vista aperta sulla Roseraie Princesse Grace. Residenza con portineria e piscina. Posto auto e cantina inclusi.

Rif. : HP-VRM29
Prezzo : 4 950 000 €
Camere : 1
Bagni : 1
Tipo di proprietà : Appartamento
Edicifio : Rosa Maris
Quartiere : Fontvieille (Monaco)
Superficie abitabile : 53 m²
Superficie totale : 69 m²
Superficie terrazzi : 16 m²
Livello : 9
Parcheggi : 1

Maggiori dettagli

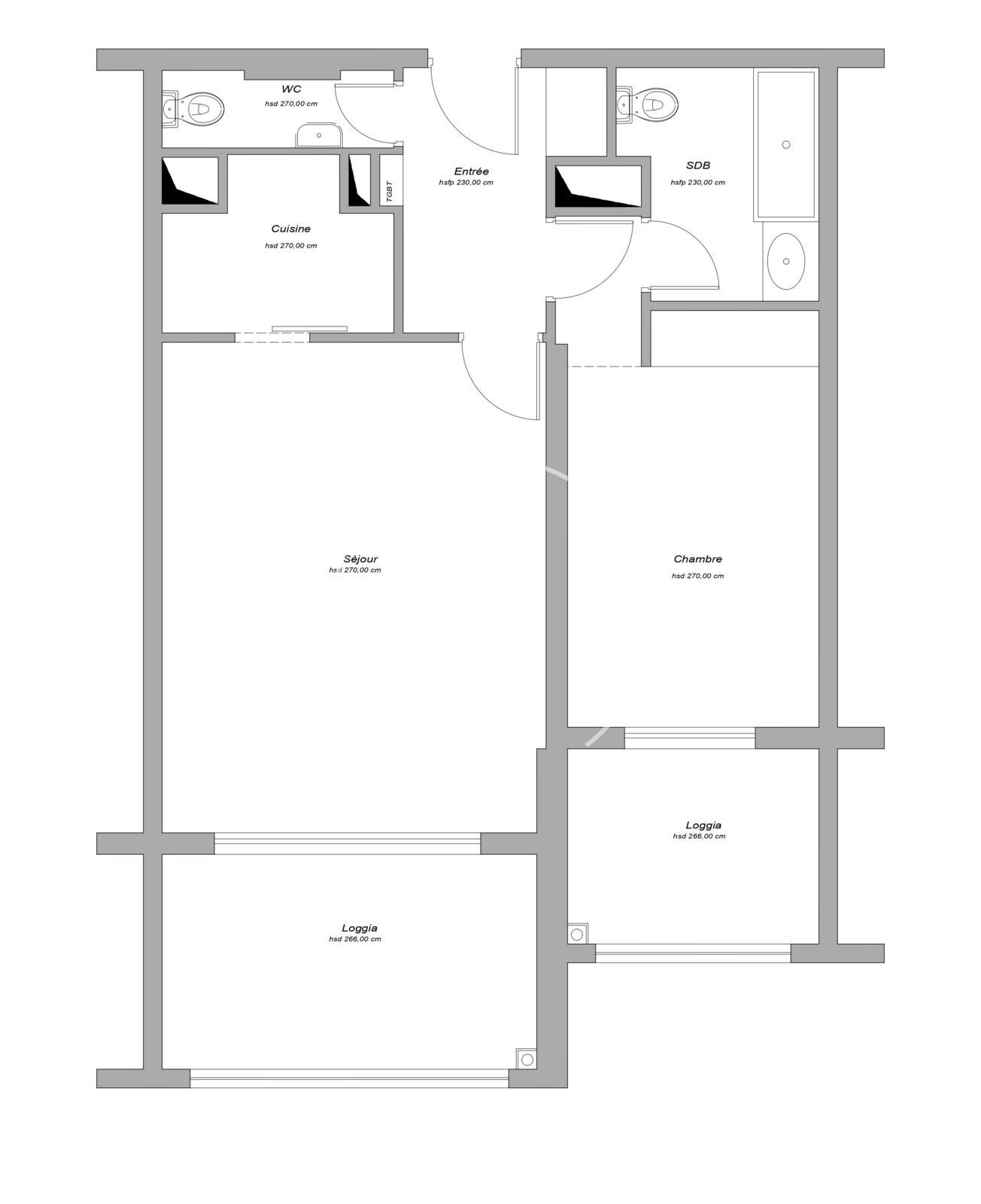
Situato sul porto di Fontvieille, all’interno di una residenza neoprovenzale di 14 piani con servizio di portineria e piscina, questo bilocale ai piani alti offre una vista aperta sulla Roseraie Princesse Grace.

Con una superficie abitabile di 53 mq, è completato da 16 mq di logge, accessibili da tutti gli ambienti.

Distribuzione:

  • Ingresso
  • Soggiorno con accesso alla loggia
  • Cucina attrezzata
  • Camera da letto con accesso alla loggia
  • Bagno
  • WC ospiti

Annessi: Un posto auto e una cantina all’interno dell’edificio completano la proprietà.

Heritage Properties

Heritage Properties

31, avenue Princesse Grace

Contatto

EFGHNW
Copiare il codice antispam nel campo a destra
* campo obbligatorio

Posizione del prodotto

Fontvieille

Il quartiere di Fontvieille e situato nella parte ovest di Monaco. Ospita fabbriche, uffici e abitazioni, un centro di soccorso.

Una gran parte di questa zona di quasi 33 ettari e stata presa sul mare, dove si è potuto costruire un porto, lo stadio Louis II, l'eliporto, un grande centro commerciale dove si trova il museo navale, il museo Monaco Top Cars Collection, il museo dei francobolli e delle monete, e uno zoo.

Si trovano anche dei palazzi con degli appartamenti dedicati ai monegaschi, accanto a palazzi di lusso come il Memmo Center, il Seaside Plaza o le Terrasses du Port.

Quartieri di Monaco

Mareterra Carré d'Or Condamine Fontvieille Jardin Exotique La Rousse - Saint Roman Larvotto Monaco-Ville Moneghetti Monte-Carlo Port