3-ROOM APARTMENT WITH TERRACE & BALCONY – SEA AND MOUNTAIN VIEW

RI Properties

RI Properties

1 Bd Princesse Charlotte

Prezzo su richiesta
No. camere : 3 stanze
Tipo di proprietà : Appartamento
Edicifio : Auteuil
Quartiere : La Rousse - Saint Roman
Città : Monaco
Superficie abitabile : 120 m²
Superficie totale : 145 m²
Superficie terrazzi : 25 m²
Parcheggi : 1

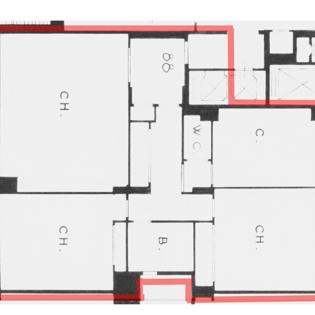
Situato all'ultimo piano della residenza Auteuil, con servizio di portineria, questo appartamento di 3 locali seduce con la sua luminosità, i suoi bei volumi e i suoi generosi spazi esterni, tra cui una terrazza esposta a sud-ovest e un balcone coperto sul lato nord-est.
Un immobile ideale per un progetto di ristrutturazione.

L'appartamento è composto da un ingresso con corridoio, che conduce ad un ampio soggiorno con pavimento in parquet inondato di luce grazie a due grandi porte finestre che danno accesso al terrazzo.
La cucina indipendente, accessibile tramite una camera stagna con bagno per gli ospiti, ha anche un'apertura sul balcone.

La zona notte, ben distinta, offre due camere da letto: una che si apre sul terrazzo, l'altra sul balcone.
Un bagno completo con vasca, mobiletto, bidet e wc completa questa zona notte.

L'appartamento è servito da un ascensore principale che arriva direttamente all'interno, oltre che da un ingresso di servizio attraverso il balcone, tramite un ascensore secondario.

Una cantina e un posto auto completano questa proprietà in vendita.

RI Properties

RI Properties

1 Bd Princesse Charlotte

Contatto

DORVYZ
Copiare il codice antispam nel campo a destra
* campo obbligatorio

Posizione del prodotto

Quartieri di Monaco

Anse du Portier Carré d'Or Condamine Fontvieille Jardin Exotique La Rousse - Saint Roman Larvotto Monaco-Ville Moneghetti Monte-Carlo Port