MAGNIFICHE 3 CAMERE DA LETTO VISTA MARE

BC PROPERTIES MONACO

BC PROPERTIES MONACO

13 Boulevard Princesse Charlotte

In una residenza di altissimo livello, idealmente situata in una zona tranquilla di Monaco, questa proprietà offre una vista spettacolare sul mare e sulla Rocca.

Il residence si trova a pochi minuti da Port Hercule e dal Giardino Esotico.

Prezzo : 10 600 000 €
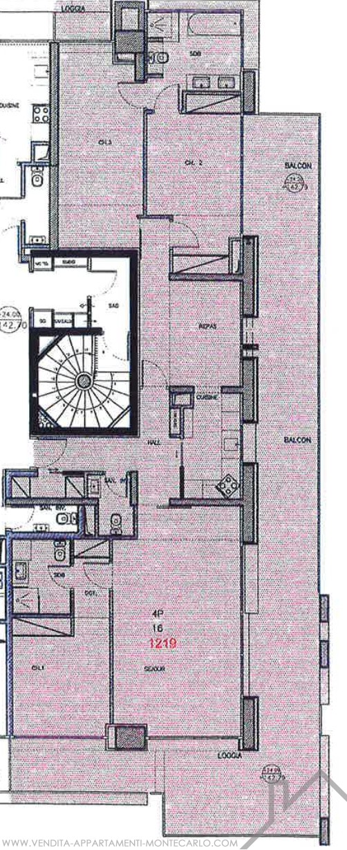
No. camere : 4 stanze
Tipo di proprietà : Appartamento
Edicifio : Monte Carlo View
Quartiere : Jardin Exotique
Città : Monaco
Superficie abitabile : 147 m²
Superficie totale : 216 m²
Superficie terrazzi : 69 m²
Livello : elevé
Data di liberazione : Immédiatement
Parcheggi : 2

Un magnifico appartamento ristrutturato con vista spettacolare sulla Rocca di Monaco e sul mare.

Si compone di tre camere da letto, una cucina separata, un soggiorno e una sala da pranzo.

Due posti auto e una cantina completano questa proprietà.

BC PROPERTIES MONACO

BC PROPERTIES MONACO

13 Boulevard Princesse Charlotte

Contatto

BDIRXZ
Copiare il codice antispam nel campo a destra
* campo obbligatorio

Posizione del prodotto

Quartieri di Monaco

Anse du Portier Carré d'Or Condamine Fontvieille Jardin Exotique La Rousse - Saint Roman Larvotto Monaco-Ville Moneghetti Monte-Carlo Port