Bel locale commerciale a Fontvieille

Carat Properties

Carat Properties

Tour Odéon 36 av. de l'Annonciade

Prezzo : 2 014 000 €
No. camere : -
Tipo di proprietà : Locale
Edicifio : Botticelli
Quartiere : Fontvieille
Città : Monaco
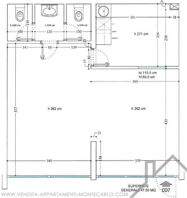
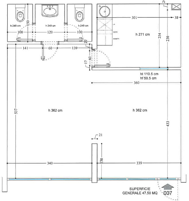
Superficie abitabile : 47.5 m²
Superficie totale : 47.5 m²
Livello : rdc
Data di liberazione : 21/10/2026

Locale commerciale in vendita a Fontvieille, che puo anche essere utilizzato come ufficio amministrativo

Con una superficie di 47,5 m², si trova al piano terra, offrendo visibilità e accessibilità ottimali 

Venduto 6050€ TTC/mese, fino al 31/10/2026

Carat Properties

Carat Properties

Tour Odéon 36 av. de l'Annonciade

Contatto

JLNPYZ
Copiare il codice antispam nel campo a destra
* campo obbligatorio

Posizione del prodotto

Quartieri di Monaco

Anse du Portier Carré d'Or Condamine Fontvieille Jardin Exotique La Rousse - Saint Roman Larvotto Monaco-Ville Moneghetti Monte-Carlo Port