Locale commerciale vista porto di Fontvieille

Carat Properties

Carat Properties

Tour Odéon 36 av. de l'Annonciade

Prezzo : 2 756 000 €
No. camere : -
Tipo di proprietà : Locale
Edicifio : Le Michelangelo
Quartiere : Fontvieille
Città : Monaco
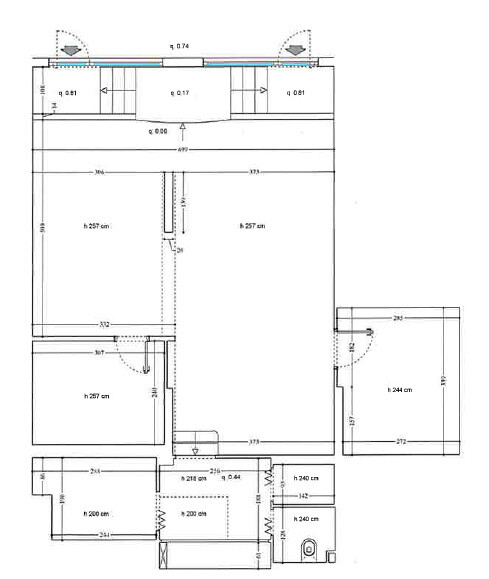
Superficie abitabile : 85.5 m²
Superficie totale : 85.5 m²
Livello : rdc
Data di liberazione : 30/09/2026

Bella superficie per questo locale commerciale situato sul porto di Fontvieille, che può essere utilizzato anche come ufficio amministrativo

Con una superficie confortevole di  85,5 m², al piano terra dispone di 2 grandi vetrine e 2 porte di accesso.

È composto da una spaziosa stanza principale, 2 stanze laterali, 1 lavanderia, 1 deposito, 1 bagno e armadi.

Venduto affittato 4814,77€ TTC/mese, fino al 30/09/2026

Carat Properties

Carat Properties

Tour Odéon 36 av. de l'Annonciade

Contatto

GLPUVZ
Copiare il codice antispam nel campo a destra
* campo obbligatorio

Posizione del prodotto

Quartieri di Monaco

Anse du Portier Carré d'Or Condamine Fontvieille Jardin Exotique La Rousse - Saint Roman Larvotto Monaco-Ville Moneghetti Monte-Carlo Port