LEONARDO PALACE – INTERO PIANO – VISTA MARE

51 800 000 €
Lorenza von Stein Monaco

Lorenza von Stein Monaco

47, boulevard du Jardin Exotique

Benvenuti a Palazzo Leonardo, un'eccezionale residenza di lusso. Questa spaziosa residenza offre privacy ed esclusività grazie all'accesso privato e al servizio di portineria 24/7.
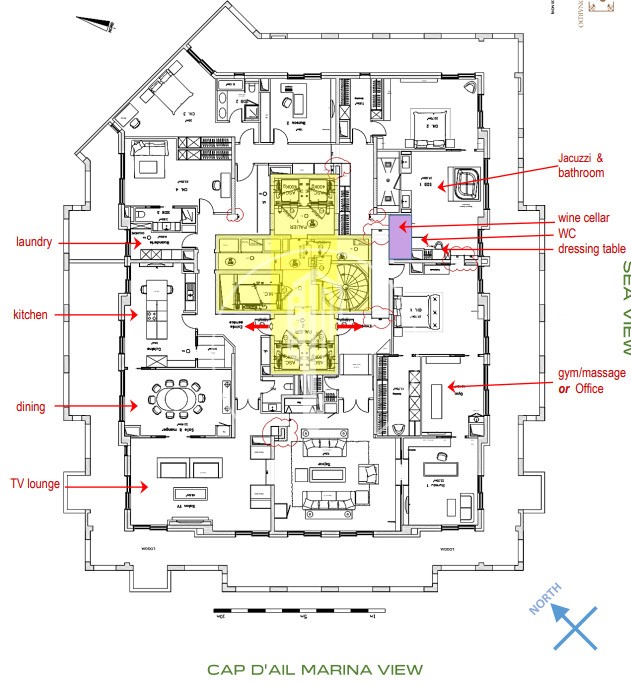
Ideale per una famiglia, questo appartamento si estende su 750 m2 e su un intero piano.
Attualmente è composto da un vasto salone triplo, 6 camere da letto e 4 bagni. Esiste la possibilità di una ristrutturazione completa per personalizzare lo spazio secondo i propri gusti.

La terrazza si estende su tutto il piano, fornendo un accesso diretto all'esterno e viste panoramiche sul mare da ogni stanza.

Rif. : VMC2165-
Prezzo : 51 800 000 €
Camere : 5+
Bagni : 4
Tipo di proprietà : Appartamento
Edicifio : Palazzo Leonardo
Quartiere : Fontvieille (Monaco)
Superficie abitabile : 500 m²
Superficie totale : 750 m²
Superficie terrazzi : 250 m²
Livello : 6
Data di liberazione : Libre
Parcheggi : 5+

Maggiori dettagli

La proprietà è composta da un ingresso, un doppio salone/sala da pranzo, una sala da pranzo, una cucina completamente attrezzata con isola, un ripostiglio, 6 camere da letto, tra cui 2 spogliatoi, e 4 bagni.

Infine, la proprietà viene venduta con 6 posti auto e 2 cantine nella residenza.

Lorenza von Stein Monaco

Lorenza von Stein Monaco

47, boulevard du Jardin Exotique

Contatto

BOQWXZ
Copiare il codice antispam nel campo a destra
* campo obbligatorio

Posizione del prodotto

Fontvieille

Il quartiere di Fontvieille e situato nella parte ovest di Monaco. Ospita fabbriche, uffici e abitazioni, un centro di soccorso.

Una gran parte di questa zona di quasi 33 ettari e stata presa sul mare, dove si è potuto costruire un porto, lo stadio Louis II, l'eliporto, un grande centro commerciale dove si trova il museo navale, il museo Monaco Top Cars Collection, il museo dei francobolli e delle monete, e uno zoo.

Si trovano anche dei palazzi con degli appartamenti dedicati ai monegaschi, accanto a palazzi di lusso come il Memmo Center, il Seaside Plaza o le Terrasses du Port.

Quartieri di Monaco

Mareterra Carré d'Or Condamine Fontvieille Jardin Exotique La Rousse - Saint Roman Larvotto Monaco-Ville Moneghetti Monte-Carlo Port